小戶型物業是長租公寓最常見的一種。小戶型雖然面積小,但要改造成長租公寓,功能可一個都不能少,其中儲物是一直最受租客關注卻最令設計師頭疼的問題。對于小戶型來說,盤活畸零空間,極盡挖掘每一平方的利用價值是重中之重。論如何改造,榨干每一寸空間,我們就窩趣公寓一個城中村的小戶型改造來舉例說明。

嵌入式擴容法
對于小戶型空間傳統方式是增加儲物柜,不僅造價高還會占據很大面積,顯得十分擁擠。將儲物空間嵌入家具做到一物多用,能釋放出更多的活動空間。

比如,窩趣公寓產品供應商將沙發底的空間設計用作儲物,利用床底空間儲物。質量好,成本幾乎沒有變化,大大擴展小型空間的使用率,提升投資回報效益。

因勢利導擴容法
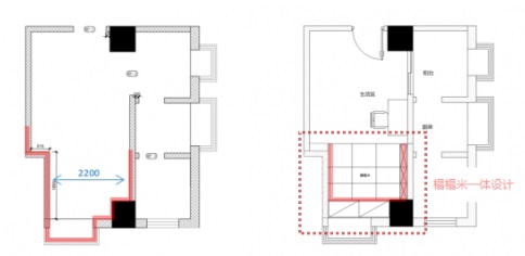
1.利用榻榻米隱形空間擴容
原物業戶型并不方正,結構造成室內有很多轉角,為了弱化結構缺點,更好的規整空間,窩趣公寓選擇用榻榻米形式的床,而榻榻米本身就非常好利用做為強儲物空間設計。

2200長的空間,做成榻榻米+儲物柜一體式的設計最適合不過,讓床、儲物柜可以很好的聯結起來,更節省空間。

收平了因原始梁位、柱位造成的各種室內陽角,又極大的擴充了儲物功能性,一舉兩得。
2. 利用飄窗擴容
將原飄窗做利用,增加儲物空間,就能多出幾平方的儲物空間。搭配床使用,即可作為床邊儲物,又可作為休閑桌面,使用舒適度大大提升。
見縫插針擴容法
利用畸零空間安插定制小柜
為保證放置符合人體工學的舒適床榻,在布局上因尺寸問題出現了一個雞肋小空間,窩趣公寓設計師見縫插針在此處安插定制小形儲物柜,美觀又實用。



